Oxford Family Home

Location - Oxford

Date - 2025

Type -Private

GIA -7.00 m2

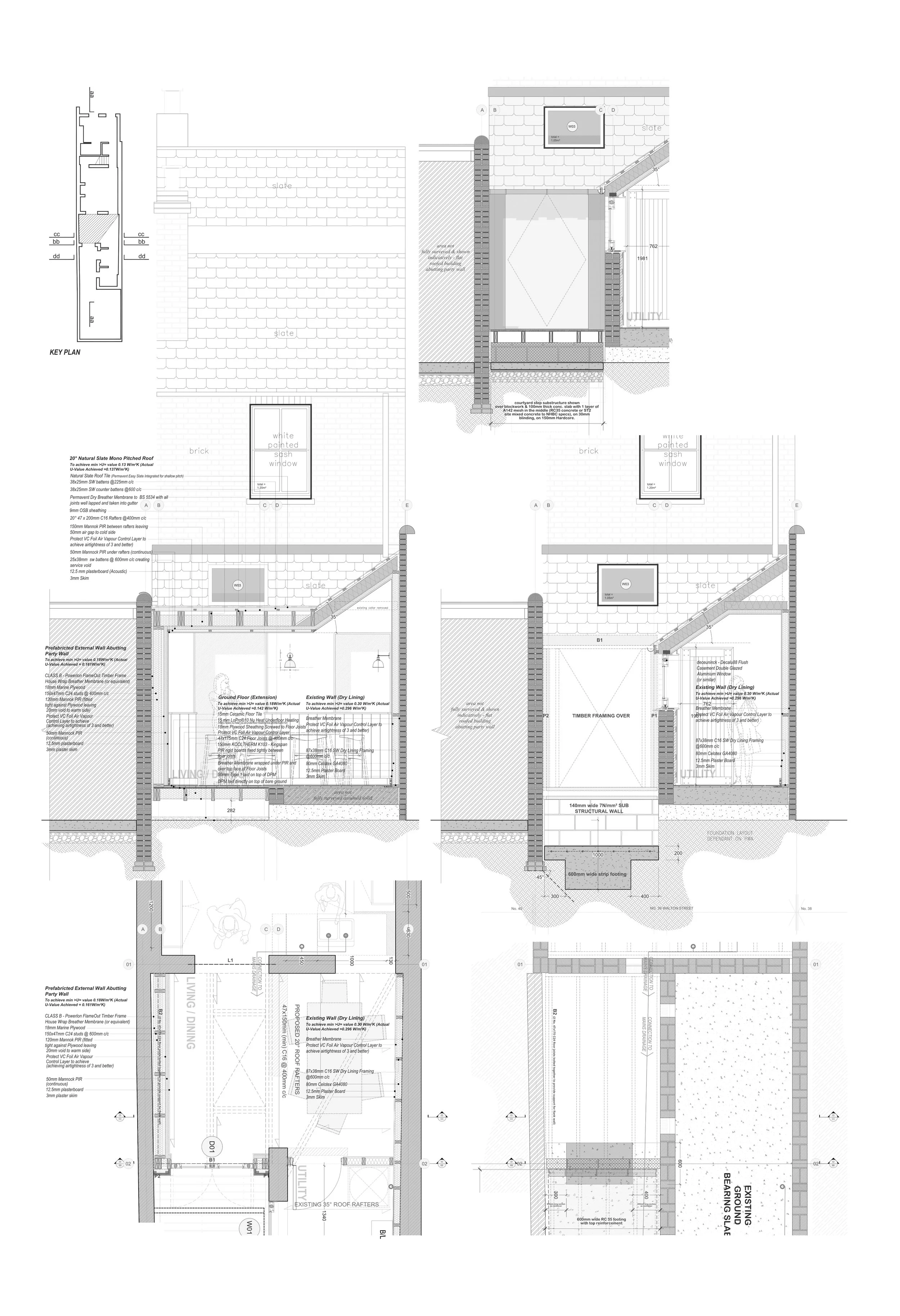
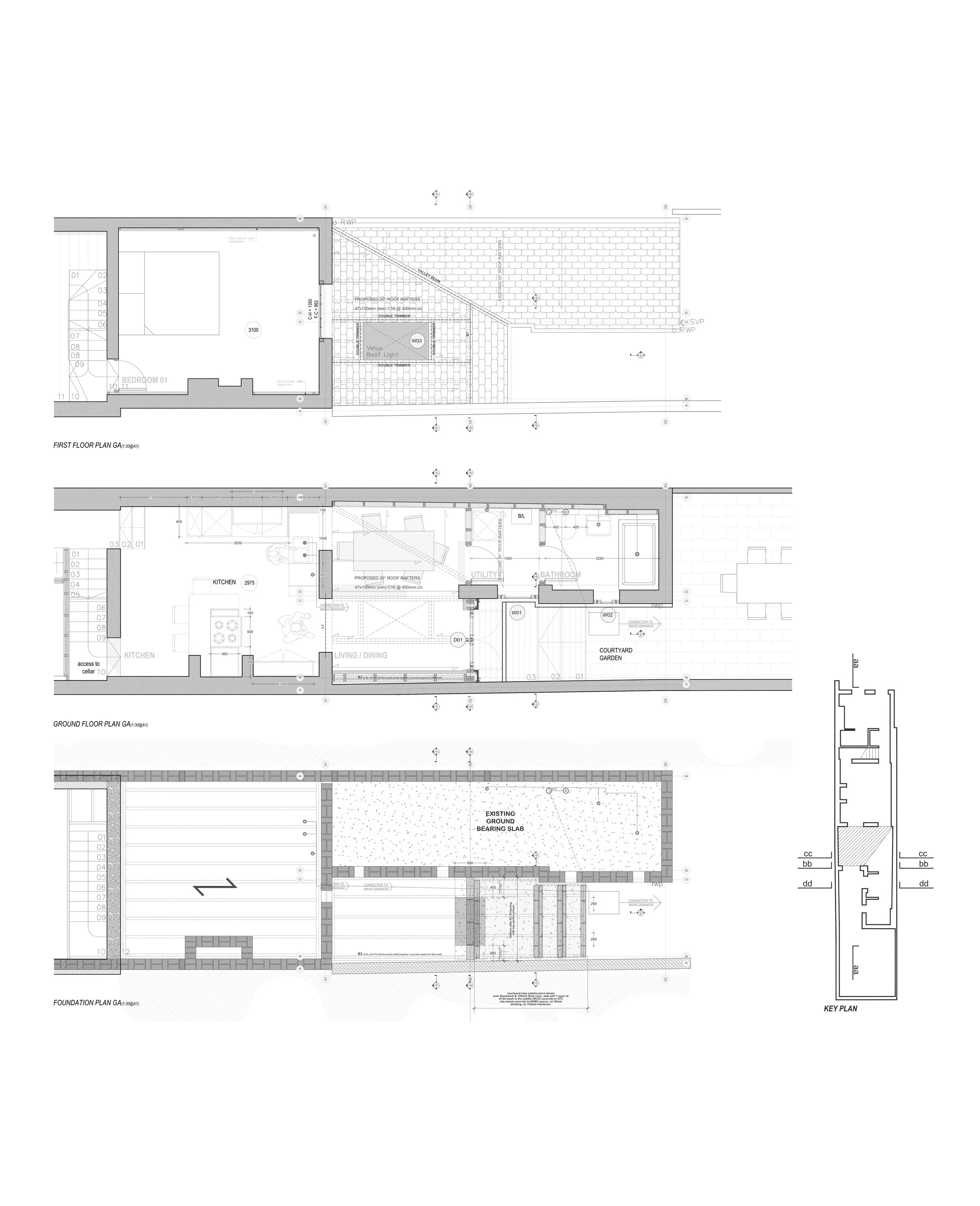
Working with a young family in Oxford to expand their town house out into the rear courtyard garden.

The project involved stitching in a small light weight, highly insulated, timber framed extension; incorporating the existing side return & resolving the kitchen / living & dining space.

The kitchen floor has been lowered so that the rear additions could be read as a single living/dining space whilst also creating an opportunity to gain much improved access to the existing cellar.

The project proved complexed through a challenging party wall agreement which was resolved alongside @tmpengineers

On site now with Green Oak Construction , due for completion later this year

#dontmoveimprove #extension #oxford

Previous
Previous

A House of Many Layers - Self Build- Mid Suffolk

Next
Next

King Street - Renovation