King Street - Renovation

Location - East Suffolk

Date - 2025

Type -Private

GIA -99.00 m2

King Street in Aldeburgh is closely tied to the town’s historic “Garrett Era” — a planned suburb created for the upper middle class during the late 19th and early 20th centuries. Developed by influential figures such as Newson Garrett and Peter Bruff, the area features homes designed by prominent architects of the period. It is also notable as the residence of Elizabeth Garrett Anderson, Britain’s first qualified female doctor and a leading suffragist, who lived and worked here with her husband.

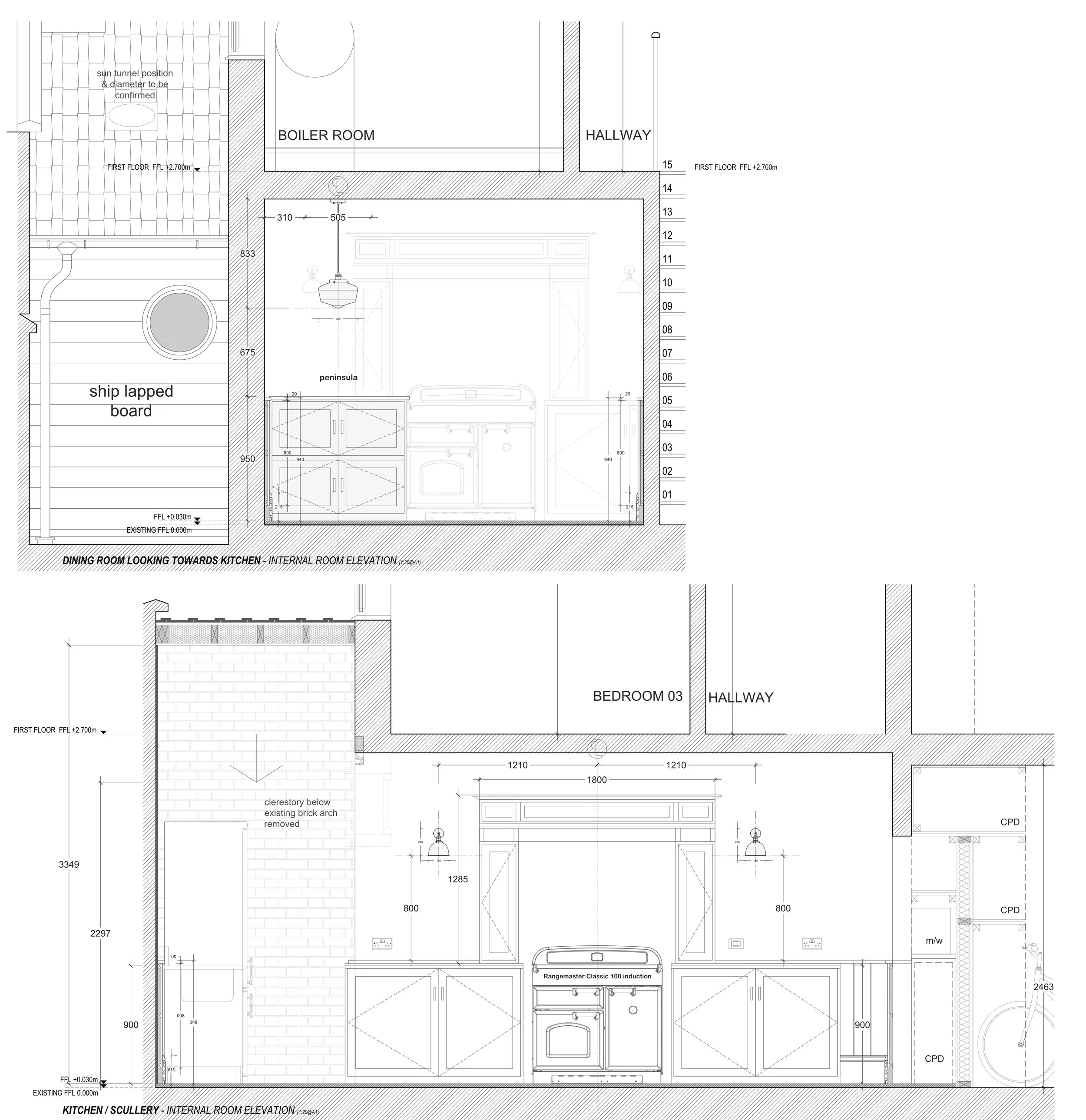
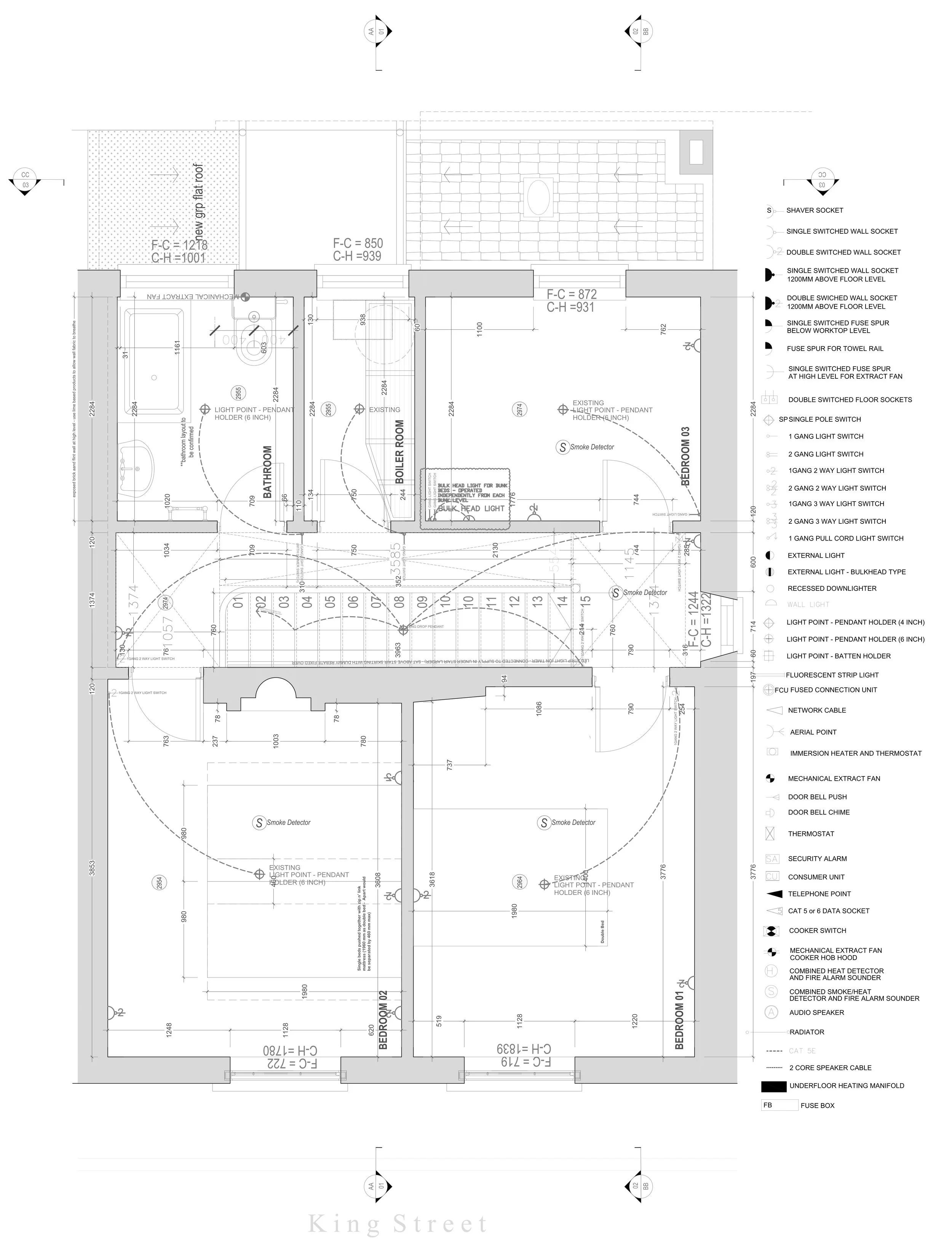
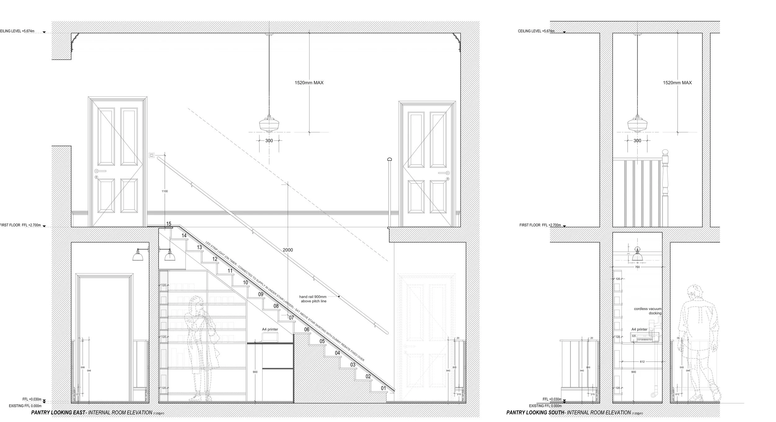
The existing dwelling, located just a street back from Aldeburgh’s famous beach, has been undergoing a sensitive renovation throughout 2025. From the outset, the client’s ambition was a light-touch approach: modernising the home while retaining its inherent character and quality. The design also accommodates flexible use — functioning as a short-term holiday let when not occupied by the owners. Certain areas of the plan can be discreetly closed off or hidden during guest stays to ensure practicality and privacy.

Every part of the proposal has been meticulously considered, prioritising efficiency and integrity. By interrogating the existing layout, we have removed only what was necessary and added only what meaningfully enhances the home.

The project is currently on site with principal contractor Aaron Blackwell @labc_group.

#Architecture #Renovation #ResidentialDesign #HeritageArchitecture #AdaptiveReuse #SustainableDesign #CoastalArchitecture #UKArchitecture #Aldeburgh #suffolk

Previous
Previous

Oxford Family Home

Next
Next

Low Barns - Holiday Lets