Low Barns - Holiday Let Conversion

Location - East Suffolk

Date - 2025

Type -Private

GIA -202.00 m2

Full Plans Building Regulation Application approved by East Suffolk Council.

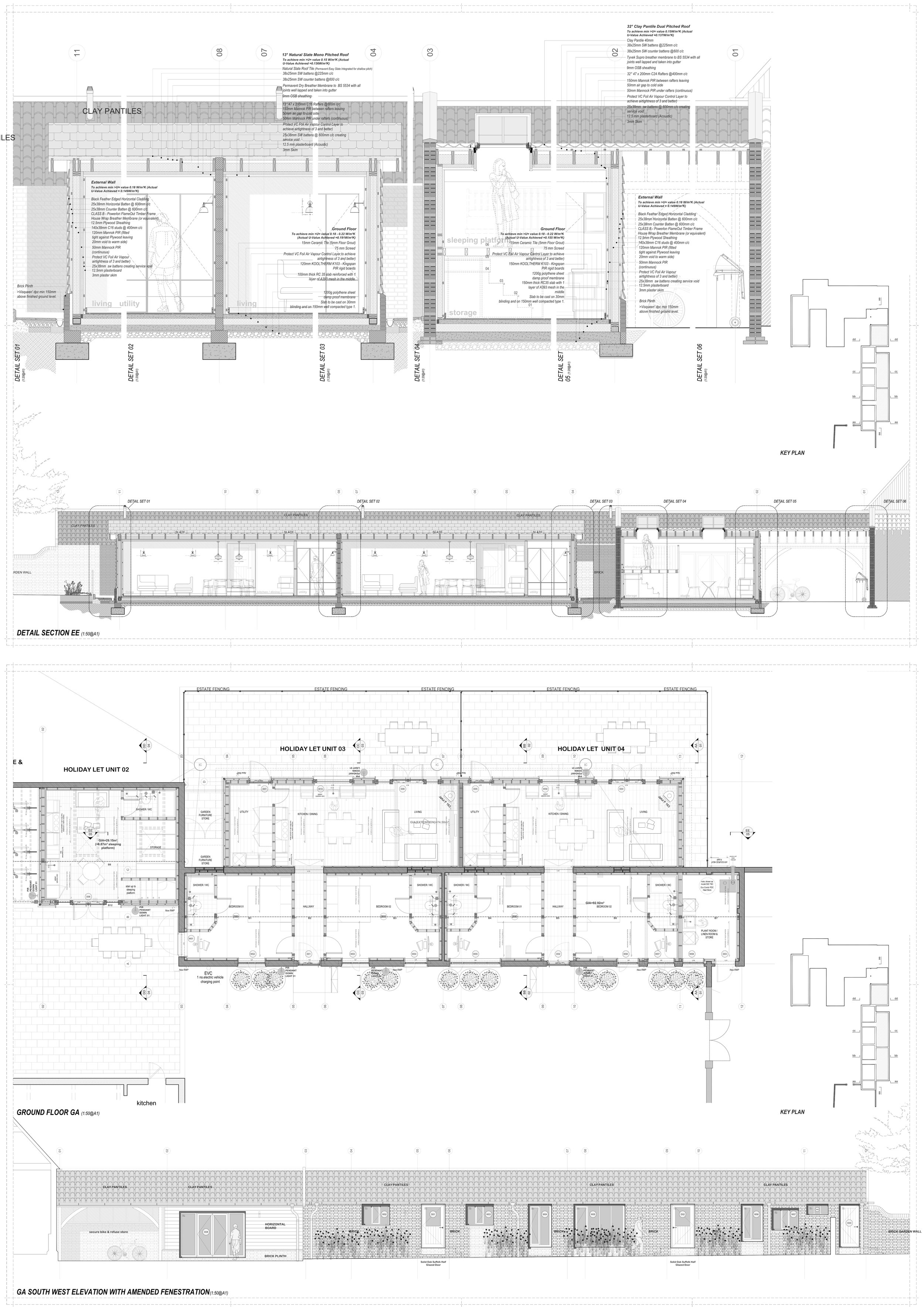
This project was undertaken in collaboration with a wonderful and forward-thinking family who recognised the potential of their existing farm buildings and had the ambition to transform them into high-quality holiday let accommodation. The design approach balanced contemporary living requirements with a deep respect for the agricultural heritage of the site, resulting in a sensitive and characterful retrofit.

The scheme involved the adaptive reuse of several existing farm structures, with the addition of a modest single-storey extension to enhance the accommodation layout. The existing barns were stripped back and re-roofed using a traditional cut roof system, allowing for the introduction of vaulted ceilings over the bedroom areas. This created generous volumes and celebrated the original rural proportions of the buildings.

The former cart lodge required a more dramatic intervention. Its roof structure was carefully raised to form an open, studio-style living space with a mezzanine sleeping platform tucked beneath the rafters. The result is a playful, flexible interior that makes full use of height and light while retaining the essence of the original utilitarian building.

Do you have a commercial project in mind, or a business plan to maximise profitability from your existing building stock? Changes to Planning Legislation including ‘Class R- Permitted Development ’ are encouraging the repurposing of existing farm buildings and former agricultural land. Get in touch if you have a project in mind. Featured Project: Full Planning Approval received for the conversion of existing barns to short term holiday lets, currently at detail design stage #reuse #repurpose #retrofit #holidaylets #suffolk

Previous
Previous

King Street - Renovation