

























Retrofit & Extension - Private - Aldeburgh
Location - Aldeburgh, Suffolk
Date - 2022-2024
Type - Private Domestic Extension & Retrofit
GIA - 201 m2
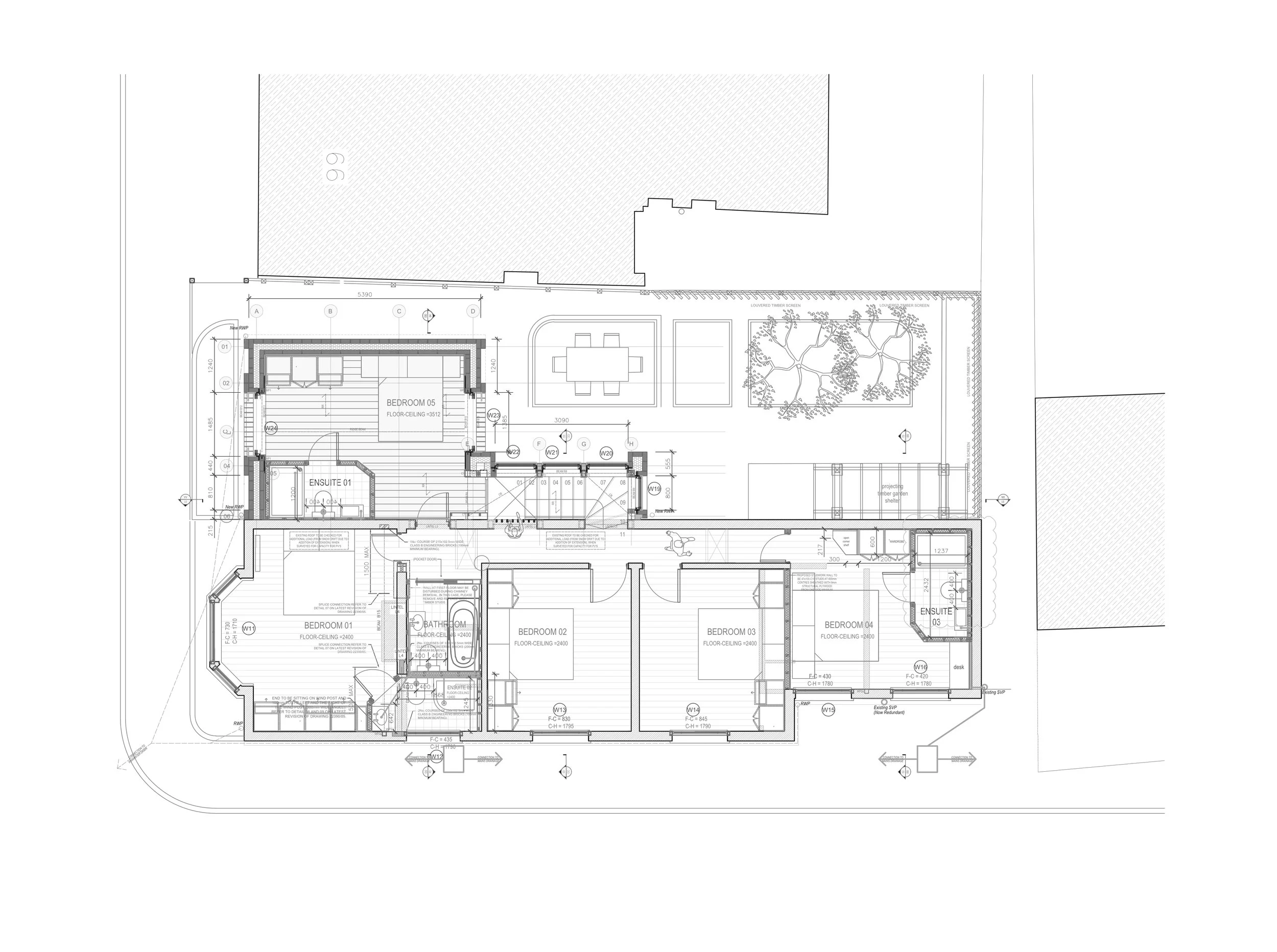
This characterful property once occupied by a prominent local artist and now owned by a family from Essex, clearly had potential, despite its challenges. The ground floor had already been opened up by previous owners to create a bright, open-plan living space, capitalising on its generous south-facing sash windows. However, a poorly constructed courtyard extension, which, according to neighbours, had particularly poor acoustic properties, felt disconnected and underused at the edge of the main living area. This extension was demolished to make way for a deeper, more functional courtyard.
The first-floor corridor—long, narrow, and poorly lit—felt dark and oppressive despite being illuminated by two small roof lights. In stark contrast, the ground floor, with its generous south-facing sash windows, was flooded with warm natural light, a feature that immediately attracted the client to the property.
Upon the initial site inspection, it was clear that this spacious, light-filled ground floor had to be fully optimised. The goal was to extend the same quality of natural light throughout the house. To achieve this, a double-height volume was introduced, incorporating a new bay staircase and circulation bridge. This approach not only brought in more light but also shortened the existing first-floor corridor. At the same time, it freed up space at both ground and first floors for the addition of efficiently planned bathroom, WC, and utility spaces.
An extensive solar array on the existing South Facing roof provides enough energy to run the wet system underfloor heating integrated within the screed at ground floor level, whilst also providing energy for the intermittent use of underfloor electrical heating mats at first floor level .
A modest gable-ended extension, housing a new kitchen and a bedroom above, complements the streetscape with simple & robust brick detailing, enhancing both the home’s functionality and its connection to the surrounding area.
The renovation was carried out with care and craftsmanship by Jones & Sons Property Solutions, with all joinery, windows, and doors beautifully produced by Ashbocking Joinery & Interior Design and finishes expertly completed by Cotton Tree Interiors.